YALOVA SALİH CÜSTAN İŞ MERKEZİ…
Yalova Merkez Kirazlı Sanayi Bölgesi 151/10 Parsel
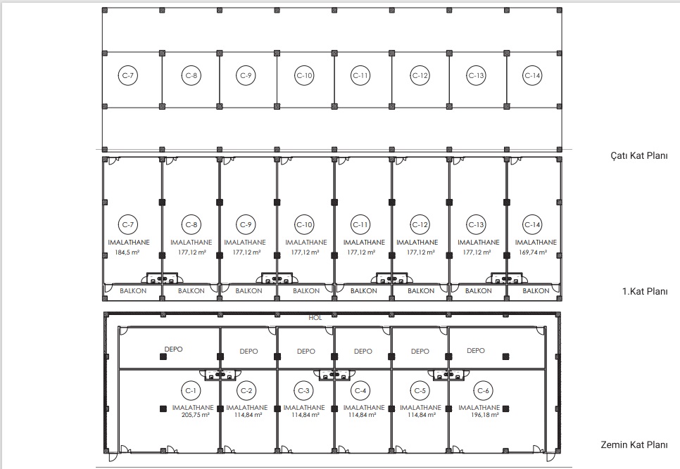
7 Adet Blok
116 Adet Dükkân
16.153,79 m² Arsa Alanı
14.700 m² Kapalı İnşaat Alanı
Güvenlikli Sanayi Sitesi
Yalova Sanayisinin En Aktif İki Yoluna Cephe
Her Türlü Mühendislik Hizmeti Almış
Yönetim Ofisi
Kaliteli ve Projelerine Uygun Yalıtım
Güvenlikli Giriş-Çıkış
Prekast Döşeme Sistemleri
Boşluklu Döşeme
Sığınak
Drenaj ve Kanalizasyon Sistemi
Sanayi Sistemlerine Uygun Elektrik Sistemi ve Trafo
Yangın Söndürme Sistemi (Sprinkler)
Her Türlü Ağır Vasıtanın Kullanabileceği Geniş Yollar
Çatı İçin Yalıtımlı Sandviç Panel
İsteğe Bağlı Olarak Dükkânlarda Birleştirme Yapılabilir.





Yalova Sanayi bölgesine değer katıyoruz. Yalova Sanayisinin en aktif iki yoluna cephe, güvenlikli, her türlü ağır
vasıtanın giriş çıkışı için uygun yolları ile hem yatırımlık hem de işletmeniz için çok uygun dükkân seçenekleri sunuyoruz.
Yalova Salih Cüstan Ticaret Merkezi 2
Yalova Merkez Kirazlı Sanayi Bölgesi 149 6 ve 149 7 Parsel
Sanayi, ticaret merkezlerinin ve şehrin yanında
-Şehir merkezine, denize, limana çok yakın
-İşlek lokasyon
-Bursa-Yalova yoluna çok yakın
-İki sanayi yoluna sıfır
-Hem küçük hem ağır vasıtalar için ulaşım avantajı
-En son inşaat teknikleri, güvenliği ve konforuyla inşa edilen.
-Otogar’a 200 m mesafede.
-İzmir Otoban bağlantısına çok yakın.
-Tersaneler Bölgesine ve Organize Sanayi Bölgesine çok yakın olup OSB ve
Tersanelere yan sanayi başta olmak üzere tedarik sağlayan sanayi sitesi.
-Kiracı talebi yüksek olduğu için kiraya hemen verilebilmektedir ve yüksek kira getirisi Sağlar.







































