Yalova Salih Cüstan Ticaret Merkezi 2
Yalova Merkez Kirazlı Sanayi Bölgesi 149 6 ve 149 7 Parsel
Sanayi, ticaret merkezlerinin ve şehrin yanında
-Şehir merkezine, denize, limana çok yakın
-İşlek lokasyon
-Bursa-Yalova yoluna çok yakın
-İki sanayi yoluna sıfır
-Hem küçük hem ağır vasıtalar için ulaşım avantajı
-En son inşaat teknikleri, güvenliği ve konforuyla inşa edilen.
-Otogar’a 200 m mesafede.
-İzmir Otoban bağlantısına çok yakın.
-Tersaneler Bölgesine ve Organize Sanayi Bölgesine çok yakın olup OSB ve
Tersanelere yan sanayi başta olmak üzere tedarik sağlayan sanayi sitesi.
-Kiracı talebi yüksek olduğu için kiraya hemen verilebilmektedir ve yüksek kira getirisi Sağlar.








































YALOVA SALİH CÜSTAN İŞ MERKEZİ
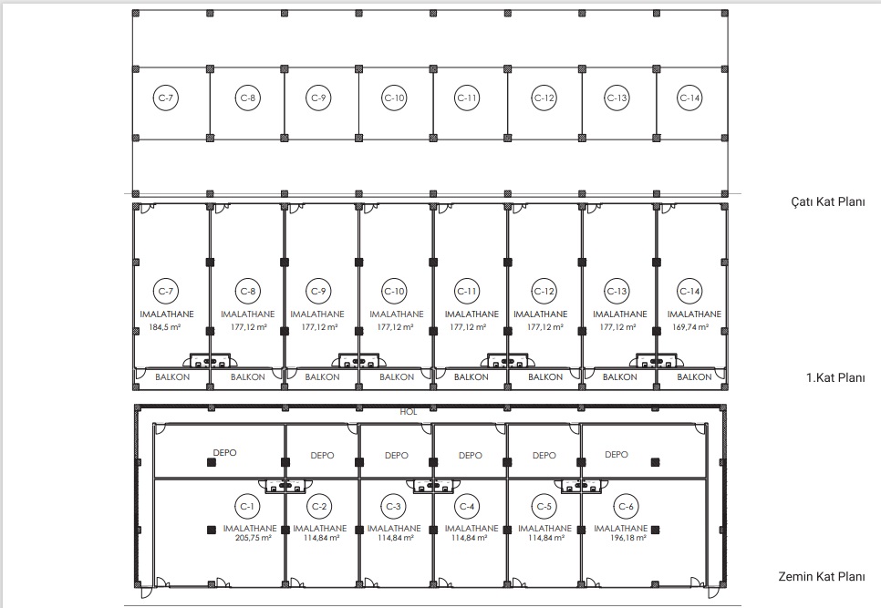
Yalova’nın yükselen değeri Kirazlı Sanayi Bölgesinde,16.000 m² arsa içinde 7 blokta toplam 116 dükkân ile Yalova Sanayi bölgesine değer katıyoruz. Yalova Sanayisinin en aktif iki yoluna cephe, güvenlikli, her türlü ağır vasıtanın giriş çıkışı için uygun yolları ile hem yatırımlık hem de işletmeniz için çok uygun dükkân seçenekleri sunuyoruz.
Yalova Merkez Kirazlı Sanayi Bölgesi 151/10 Parsel, 7 Adet Blok, 116 Adet Dükkân, 16.153,79m² Arsa Alanı, 14.700 m² Kapalı İnşaat Alanı, Güvenlikli Sanayi Sitesi
Yalova Sanayisinin En Aktif İki Yoluna Cephe, Her Türlü Mühendislik Hizmeti Almış,
Yönetim Ofisi, Kaliteli ve Projelerine Uygun Yalıtım, Güvenlikli Giriş-Çıkış, Prekast Döşeme Sistemleri, Boşluklu Döşeme, Sığınak, Drenaj ve Kanalizasyon Sistemi, Sanayi Sistemlerine Uygun Elektrik Sistemi ve Trafo, Yangın Söndürme Sistemi (Sprinkler),
Her Türlü Ağır Vasıtanın Kullanabileceği Geniş Yollar, Çatı İçin Yalıtımlı Sandviç Panel,
İsteğe Bağlı Olarak Dükkânlarda Birleştirme Yapılabilir.





YALOVA MERKEZDE SGK, VERGİ DAİRESİ, SAHİL ŞERİDİNE 5 DK YÜRÜME MESAFESİNDE ŞEHRİN TAM GÖBEĞİNDE
3+1 | Net:120 m2 | Brüt: 145 m2 Bulunduğu Kat 2




















3+1 | Net:110 m2 | Brüt: 125 m2 Bahçe Katı


















Tamamlanan projeler için tıklayın https://tusbainsaat.com.tr/tamamlanan-projeler/